회로도 설계
회로도 설계는 컨셉 구축 완료 후 다음 단계입니다. 회로도 개발은 승인된 모든 ‘블루 스카이’ 아이디어를 수용하여 해당 아이디어들을 엔지니어와 장인이 청사진으로 사용할 수 있는 실세계 계획으로 변환합니다. 프로젝트의 범위와 규모에 따라 회로도 설계에는 다음 사항이 포함될 수 있습니다.
- CAD 계획
- 3D 모델(디지털 또는 실제)
- 영역 개발
- 고도 도해
- 재료/컬러 보드
- 강력하고 정제된 서사구조/최초 원고 작성
- 기술적 서사구조
- 기술 패키지/매트릭스
- 고급 아트/렌더링
- 스토리보드
- 캐릭터 디자인
- 세트 플랜 개발 표시
- 미디어 플로우 스로우
- 고급 디지털/실제 모델
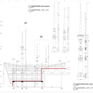
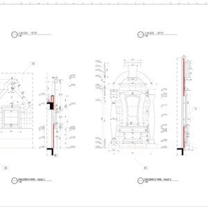
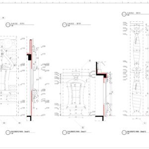
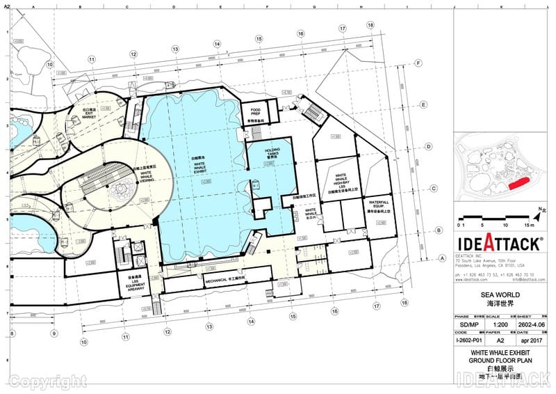
세부 디자인
세부 디자인은 설치가 시작되기 전 창의적인 프로세스에 있어서의 마지막 단계입니다. 이것은 건축 설계자가 계획, 입면 및 섹션 생성을 마무리하고 모든 창의적인 세부 사항이 완료된 후에 프로젝트가 생산 및 설치를 위해 현장으로 이동할 준비가 된 단계입니다. 프로젝트의 범위와 규모에 따라 상세 정보 설계에는 다음 사항이 포함될 수 있습니다.
- 최종 CAD 계획, 섹션, 입면
- 최종 아키텍처 세부 정보
- 최종 기술 서사구조/매트릭스
- 최종 영역 개발 기획
- 최종 조경 설계
- 최종 결과물/스토리보드
- 최종 자료/컬러 보드
- 최종 서사구조/스크립팅
- 최종 쇼 세트 설계
- 최종 디지털/실제 3D 모델
- 최종 캐릭터 디자인
- 어트랙션 천막/간판/표지만 디자인















































































